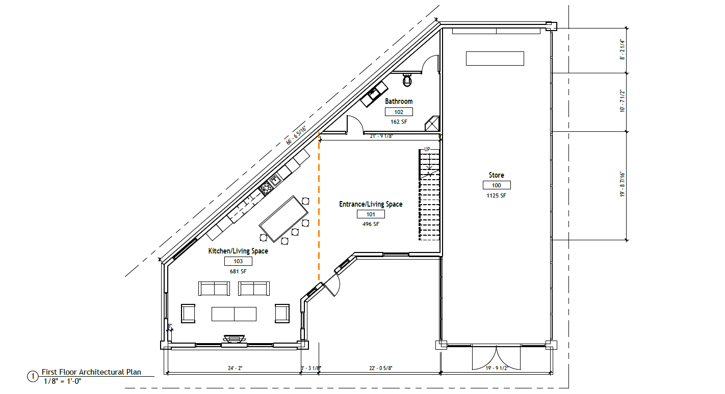
This project in Mbabane, Eswatini, is a home and workplace combined. Situated at Western Distributor and Gwamile Street, it offers a convenient location for a family-run grasshopper business. The building itself ensures clear separation between living and working areas. The business focuses on selling DIY grasshopper terrariums, providing families with a sustainable protein source. Additionally, individual grasshoppers are available for purchase. My goal is to create a functional space where the family can live comfortably while successfully running their innovative enterprise, contributing to both local livelihoods and dietary diversity.
The living space is meticulously crafted to combine aesthetics with simplicity, ensuring the family's essential needs are met without compromising on style. With a thoughtful balance of functionality and elegance, every aspect of the design is tailored to provide a comfortable and inviting environment for daily living.
Back to Top