This two-story Accessory Dwelling Unit (ADU) spans 840 square feet and is a designed living space crafted for ultimate comfort and flexibility. Perfectly suited for one or two individuals, the layout maximizes space with an open ceiling concept that enhances the feeling of openness and airiness. The interior features modern amenities, including a full kitchen, bathroom, and living areas, offering both functionality and style. The design also includes a convenient garage, providing secure storage and parking. The highlight of the ADU is its luxurious balcony and patio, which serve as an outdoor extension of the living space. These areas are ideal for relaxing, entertaining, or enjoying quiet moments while taking in the surrounding environment. The ADU blends contemporary finishes with comfort, offering a high-end, private living experience tailored to the needs of its residents.

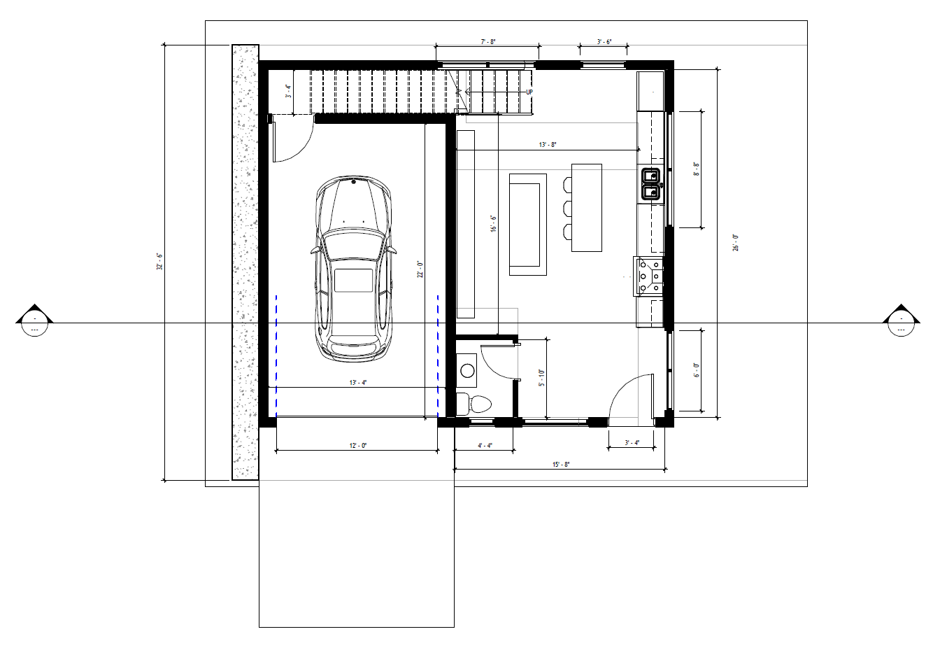
Level 1 Floor Plan


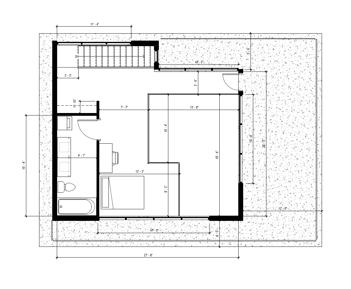
Level 2 Floor Plan
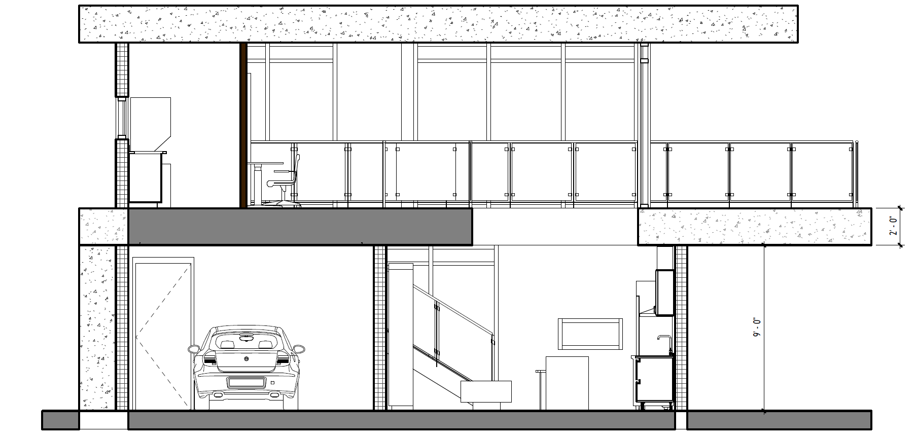
Section

Elevations

Balcony Drainage System

The balcony drainage system is designed with both functionality and aesthetics in mind. The structure incorporates a wooden frame with a strategically placed opening at the edge. This opening is the first point of water collection, allowing any rain or runoff to flow through and into the system. Beneath the surface, there is a hidden slope carefully engineered under the balcony flooring. 
The water flows down this slope, which leads to a concealed gutter system located at the base of the balcony. The gutter system is seamlessly integrated into the overall design, hidden from view yet fully capable of efficiently channeling the water away from the building’s foundation.
Back to Top